Why We Keep Building Unlovable Housing
Architect Michael Eliason traces design failures back to the rules that shape our buildings.
Building for People: Designing Livable, Affordable, Low-Carbon Communities by Micheal Eliason arrives at a moment when the U.S. housing conversation is finally getting more specific. We are no longer just asking how much housing we need, but what kind and why the rules we rely on so often prevent us from building places people actually want to live in.
Eliason makes the argument that our housing outcomes are not the result of market failure or lack of innovation. They are the predictable product of a small number of regulatory choices that shape building form early and decisively. Once those choices are made, affordability, livability, and environmental impact are largely locked in.
At the center of Building for People is the idea that form matters more than we admit. Eliason shows how mid-rise, human-scale buildings, often four to six stories, deliver better outcomes than both suburban sprawl and high-rise towers. These buildings are dense without being overwhelming, compact without being cramped, and capable of supporting real neighborhood life.

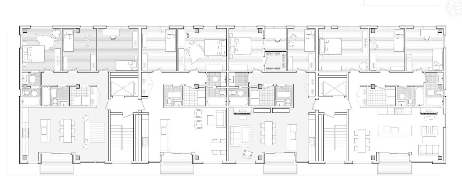
The example he focuses on is the point access block, also known as the single stair building, a building type common across much of Europe but rare in the US and not-permitted in North Carolina. Because point access buildings use a single staircase to serve a small number of units per floor, they enable better floor plans, more daylight, cross-ventilation, and a higher share of family-sized homes. They are simpler to build, cheaper per unit, and inherently lower carbon due to shared walls and reduced surface area.

In the US, these buildings are often illegal by default. Eliason is clear that this is not because they are unsafe or untested, but because our codes reflect outdated assumptions rather than modern life-safety systems like sprinklers, alarms, and fire-rated assemblies. The result is housing that skews toward studios and one-bedrooms, deep floor plates, long corridors, and higher costs; outcomes that feel inevitable but are, in fact, designed.
Throughout the book, Eliason connects these building-scale decisions to larger goals. He argues that we cannot meaningfully address housing affordability, climate change, and public health separately. Car-light neighborhoods, compact blocks, and socially oriented buildings reduce emissions, lower household costs, and create places where daily life is healthier and more connected. As he puts it in one interview, this is about creating places where people aren’t “eating exhaust with their beer.”
Some of the book’s central ideas include:
Why mid-rise point access buildings are a missing link in U.S. housing
How affordability is determined at the form and layout stage, not through finishes
The role of car-light planning in improving both cost and quality of life
How family-friendly housing and climate goals can reinforce each other
What makes Building for People especially compelling is that it is neither nostalgic nor utopian. The examples Eliason draws from are real, built, and functioning today. The reforms he points to are already underway in parts of the U.S., as states and cities revisit single-stair rules and missing-middle housing more broadly.
For places like North Carolina that are growing quickly but struggling to produce housing between single-family subdivisions and large apartment complexes, these ideas are particularly relevant. The book helps explain why the “missing middle” has been so hard to deliver, and what it would take to change that.
If you’re interested in housing reform, single-stair policy, or simply building better places, this book is worth your time. We hope you’ll read along with us and join the discussion at the CITYBUILDER Book Club.
Join CITYBUILDER Book Club
📘 Building for People by Micheal Eliason
📅 Wed Jan 28th 12:00pm - 1:00pm
📍 PRESS Coffee Crêpes Cocktails
400 Hillsborough St suite 108, Raleigh, NC 27603, USA
👉 RSVP here
Come for the ideas. Stay for the people who want to build a Triangle where everyone has a place to live. We’ll see you there.




Very intriguing concept.
this matters so much, thank you.